ВАЛЕНТИНАДОЛОТЦЕВА
дизайнер/декоратор
2 в 1

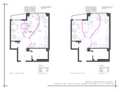
Перепланировка однокомнатной квартиры. Задачка не из легких. Из однокомнатной квартиры с двумя окнами сделать двухкомнатную.
Однокомнатная квартира общей площадью 53,4м2: жилая площадь 25,5м2, кухня 11,5м2. Высота этажа 2,8м. Ориентирована на восток. Окно в комнате - витраж во всю стену.
Главное требование - выстроить комнату для сына подростка. Комната родителей должна выполнять функции гостиной, кабинета (рабочие места предусмотреть для обоих супругов), и спальни.
Один из вариантов решения - максимально отказаться от мебели. Перегородка между комнатами - она же полки, стеллажи. Спальное место сына (на высоте примерно 1,2м) и перегородка между детскаой и кухней - одна конструкция. Под спальным местом в комнате - выдвижной стол, выдвижные системы хранения, со стороны кухни - системы хранения
Часть перегородки между комнатами возле окно сделать стеклянной. Стекло либо матовое, либо цветное, либо закрывать шторам/ жалюзи/ ролетами...
Визуализация - в процессе...
![]() | ![]() | ![]() |
|---|


